Projektas Kalvarijų g.
Remonto tipas
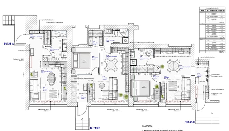
Įgyvendinta konversija iš 110 kv. m prekybinės paskirties patalpų į tris gyvenamosios paskirties butus su atskirais įėjimais. Projekto metu atliktas pilnas patalpų perplanavimas, įrengtos visos reikalingos inžinerinės sistemos, sukurti interjero sprendimai ir atlikta pilna apdaila, kad visi trys butai būtų visiškai paruošti gyvenimui.
Atlikti darbai
– Atliktas prekybinės paskirties patalpų padalijimas į tris gyvenamosios paskirties butus;
– Įrengtos naujos santechnikos sistemos: pakeisti vandentiekio ir kanalizacijos vamzdžiai, sumontuoti aukštos kokybės maišytuvai;
– Įrengta nauja elektros instaliacija pagal šiuolaikinius saugumo ir efektyvumo standartus;
– Grindys išklotos kokybišku laminatu, sumontuotos MDF tipo grindjuostės;
– Įrengti trys nauji virtuvės komplektai su integruota buitine technika: indaplovėmis, orkaitėmis, indukcinėmis kaitlentėmis, gartraukiais ir šaldytuvais;
– Sumontuotos stilingos vidaus durys, pritaikytos prie bendros interjero stilistikos;
– LED apšvietimas įrengtas virtuvės balduose, vonios kambariuose, akcentinėse sienose ir lubose;
– Vonios kambariuose įrengtos elektra šildomos grindys;
– Sumontuoti pagal užsakymą gaminti įmontuojami baldai;
– Visi trys butai pilnai apstatyti ir paruošti gyvenimui.
Bendra informacija
– Bendras plotas – 110 kv. m
– Patalpos perplanuotos į tris butus: 40,4 kv. m, 27,9 kv. m ir 40,8 kv. m
– Aukštas – 1 iš 5
– Statybos metai – 1974 m.
– Šildymas – centrinis
– Projekto tipas – prekybinės paskirties patalpų konversija į gyvenamuosius butus
– Metai – 2025












































Gaukite mūsų pasiūlymą
Susisiekite su mūsų profesionalia komanda, teikiančia pilną būsto apdailos ir įrengimo paslaugų spektrą Vilniuje ir aplinkiniuose rajonuose. Mes rūpinsimės kiekvienu statybos ir įrengimo proceso žingsniu.


